Harju maakond Saku vald Saku alevik Tallinna mnt 1

  • 2 550 000 €
  • 2778.99 € /m2

MÜÜA RAHAVOOGA ÄRIPINNAD UUES MAJAS!

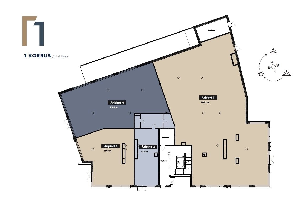
Müüa ühe objektina Saku südames värskelt valminud Tallinna mnt 1 viiekordse korterelamu esimesel korrusel asuvad vitriinakendega neljast korteriomandist koosnevad äripinnad.

Atraktiivse arhitektuuriga korterelamu asub Saku südames, mille naabruses asuvad nii olulised kauplused, koolid ja lasteaiad ning Saku Õlletehas. Kaugus Tallinna linnapiirist 8 km. Piirkonna mitmekesine ühendus Tallinnaga – rong, buss, kergliiklustee või auto – annab vabaduse valida, kuidas liigud. Suurepärane nähtavus ning asukohta ümbritsevad väljakujunenud eluhooned toetavad äripindade igapäevast külastatavust.

Pea 4m kõrguse laega pinnad on avarad ja esinduslikud ning hoonele on väljastatud kasutusluba. Bisly targa kodu süsteem võimaldab juhtida kütet, jahutust, ventilatsiooni ja läbipääse nii seinal asuvast ekraanist kui ka telefonist. Uksi saab avada nutiseadmest, tarbimisarvestid on kaugloetavad. Katusel asuv päikesepark toodab elektrit, kogu hoone on energiatõhusal kaugküttel radiaatorite kaudu ning väärtusliku lisaväärtusena on pindadele paigaldatud jahutussüsteem. Hoone kõrval paikneb avalik 44 kohaline parkla külastajatele koos kohaga elektriautode kiirlaadijale.

Pindadel tegutseb juba uksed avanud jaemüüja Pepco ning I kvartalis 2026 avavad uksed ilusalong ning toitlustuskoht. Objekt genereerib pro forma eeldustel esimesel täisaastal 173,6tEUR NOI`d ehk puhast üüritulu. Hinnale lisandub käibemaks.

Kui otsid rahavoogu genereerivat pinda kiirelt kasvavasse Harjumaa keskusesse, siis see pakkumine on Sulle!

Laenukalkulaator

Summa kuus
  • Sissemakse
  • Intressimäär
  • Laenumakse (k)
  • Maamaks (a)
  • Kodukindlustus (a)
  • Laenukindlustus (k)
%
%
%
%

Võrdle objekte

Võrdle
Jaan Liitmäe
  • Jaan Liitmäe