Harju maakond Tallinn Kesklinna linnaosa Keldrimäe Odra 2

  • 990 €
  • 19.60 € /m2

SINU ÄRI VISIITKAART TALLINNAS

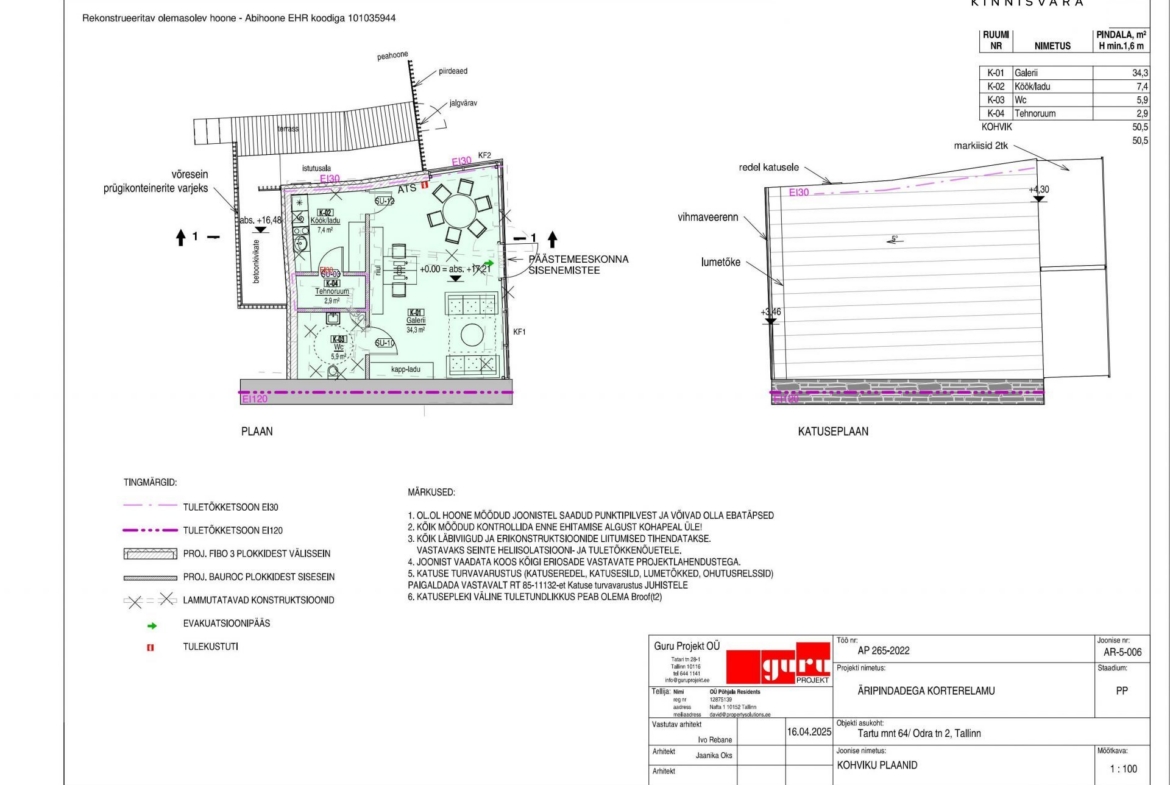
Üürida või sobiva pakkumise korral müüa 2025 hilissügisel valminud eraldi seisev ärigalerii hoone Tallinna südalinnas. Sobib nii meelelahutuspinnaks, pop-up kontoriks, kunstigaleriiks, kohvikuks, kioskiks või muu otstarbega esinduspinnaks.

Äripinda kütab õhksoojuspump ning suveks olemas jahutus.
Elektri lahendus on 3C32 ehk kolmefaasiline kaitselüliti võimsususega 32A.
Olemas WC, kööginurga valmidus ja vajadusel väike laoruum tehnoruumis.
Valgusreklaam paigaldamise võimalus hoone katusele.
Kauba mahalaadimiseks on ruumi ajutiseks peatumiseks hoone ees kõnniteel.

Tänu suurepärasele nähtavusele ning kiiresti arenevale piirkonnale on äripind eraldiseisvana Teie äri visiitkaart Tallinna ühe peamise sissepääsu ääres.

Üürihinnale lisandub käibemaks ja kõrvalkulud.
Üürileping sõlmitakse min kolmeks aastaks. Teisel ja kolmandal aastal tõuseb üürihind fikseeritult 200.-EUR võrra kuus.

Tegemist uusehitisega ning pind valmis üürnikule üleandmiseks – helista ning küsi lisainfot!

Sarnased pakkumised

Võrdle objekte

Võrdle
Jaan Liitmäe
  • Jaan Liitmäe